Traumhafte Eigentumswohnungen in St. Stefan ob Stainz
22 Eigentumswohnungen mit durchdachter Planung und hochwertiger Ausstattung

Ihr Zuhause in bester Lage – durchdacht geplant, hochwertig gebaut
Willkommen in St. Stefan ob Stainz, wo modernes Wohnen auf höchste Lebensqualität trifft. Dieses Wohnprojekt vereint durchdachte Architektur, hochwertige Ausstattung und eine Lage, die sowohl idyllisch als auch perfekt vernetzt ist.
Eingebettet in die sanften Hügel und Weinberge der Weststeiermark, profitieren Sie hier von einer einzigartigen Kombination aus Natur, Ruhe und bester Infrastruktur. Einkaufsmöglichkeiten, Restaurants und Freizeiteinrichtungen befinden sich in unmittelbarer Nähe, während die moderne Mittelschule direkt gegenüber liegt – ideal für Familien.
Hier steht Individualität im Mittelpunkt – jede Wohnung bietet die Möglichkeit, persönliche Gestaltungswünsche einfließen zu lassen. So entsteht ein Zuhause, das nicht nur ästhetisch überzeugt, sondern auch perfekt zu Ihrem Lebensstil passt.
- Geplanter Baustart: Sommer 2025
- Geplante Fertigstellung: 31. Oktober 2026
Dieses Projekt ist mehr als nur Wohnen – es ist eine Investition in Ihre Zukunft. Lassen Sie sich diese Chance nicht entgehen und sichern Sie sich Ihr neues Zuhause in St. Stefan ob Stainz.
Vereinbaren Sie noch heute eine persönliche Beratung!
Grazer Stadtlage
Ausgezeichnete Lebensqualität in erstklassiger Grazer Stadtlage.
Bauweise
Neubau in Ziegelmassivbauweise mit hellen, freundlichen Räumlichkeiten und gut durchdachtem Grundriss.
Bezugsfertig
Ideal für Menschen, die urbanen Lebensraum schätzen und großen Wert auf hochwertige und moderne Bauweise legen.
Komfort
Eigengärten und großzügig gestaltete Terrassen mit einzigartigem unverbaubarem Ausblick runden den Wohnkomfort ab.
Einheiten
18 Wohneinheiten
Diese 2-Zimmer-Wohnung im Erdgeschoss bietet auf 46 m² eine durchdachte Raumaufteilung mit offenem Wohn-/Essbereich und gemütlichem Schlafzimmer.
Die 11 m² große Terrasse und der 30 m² Garten sorgen für zusätzlichen Wohnkomfort im Freien – ideal für Singles oder Paare, die modernes Wohnen in naturnaher Umgebung schätzen.
Diese 103 m² große Maisonette verbindet modernes Wohnen mit viel Freiraum. Der lichtdurchflutete Wohnbereich öffnet sich zu einem 16 m² großen Balkon, der sich ideal für entspannte Stunden im Freien eignet. Der 49 m² große Garten schafft zusätzlichen Raum für Erholung und Naturverbundenheit – perfekt für Familien oder Paare.
Diese 59 m² große Wohnung überzeugt mit einer durchdachten Raumaufteilung und einem offenen Wohn-/Essbereich. Der großzügige 18 m² Balkon bietet zusätzlichen Wohnkomfort und lädt zum Entspannen im Freien ein – perfekt für Singles oder Paare.
Mit 59 m² Wohnfläche bietet diese Wohnung eine optimale Kombination aus Komfort und Funktionalität. Der offene Wohn-/Essbereich führt auf den 14 m² großen überdachten Balkon, der eine angenehme Erweiterung des Wohnraums ins Freie schafft.
Diese kompakte 53 m² Wohnung bietet eine moderne Raumaufteilung mit offenem Wohn-/Essbereich und einem gemütlichen Schlafzimmer. Ein 7 m² großer Balkon erweitert den Wohnraum und schafft eine angenehme Atmosphäre im Freien.
Auf ca. 110 m² bietet diese 3-Zimmer-Wohnung eine großzügige Wohnküche und zwei Schlafzimmer. Eine Terrasse mit insgesamt 65,41 m² sowie ein Garten mit ca. 43 m² sorgen für ein harmonisches Zusammenspiel aus Innen- und Außenbereich und machen diese Wohnung besonders attraktiv.
Auf ca. 108 m² bietet diese 4-Zimmer-Wohnung eine großzügige Wohnküche und drei Schlafzimmer. Eine Terrasse mit insgesamt 64,50 m² sowie ein Garten mit ca. 50,10 m² sorgen für ein harmonisches Zusammenspiel aus Innen- und Außenbereich und machen diese Wohnung besonders attraktiv.
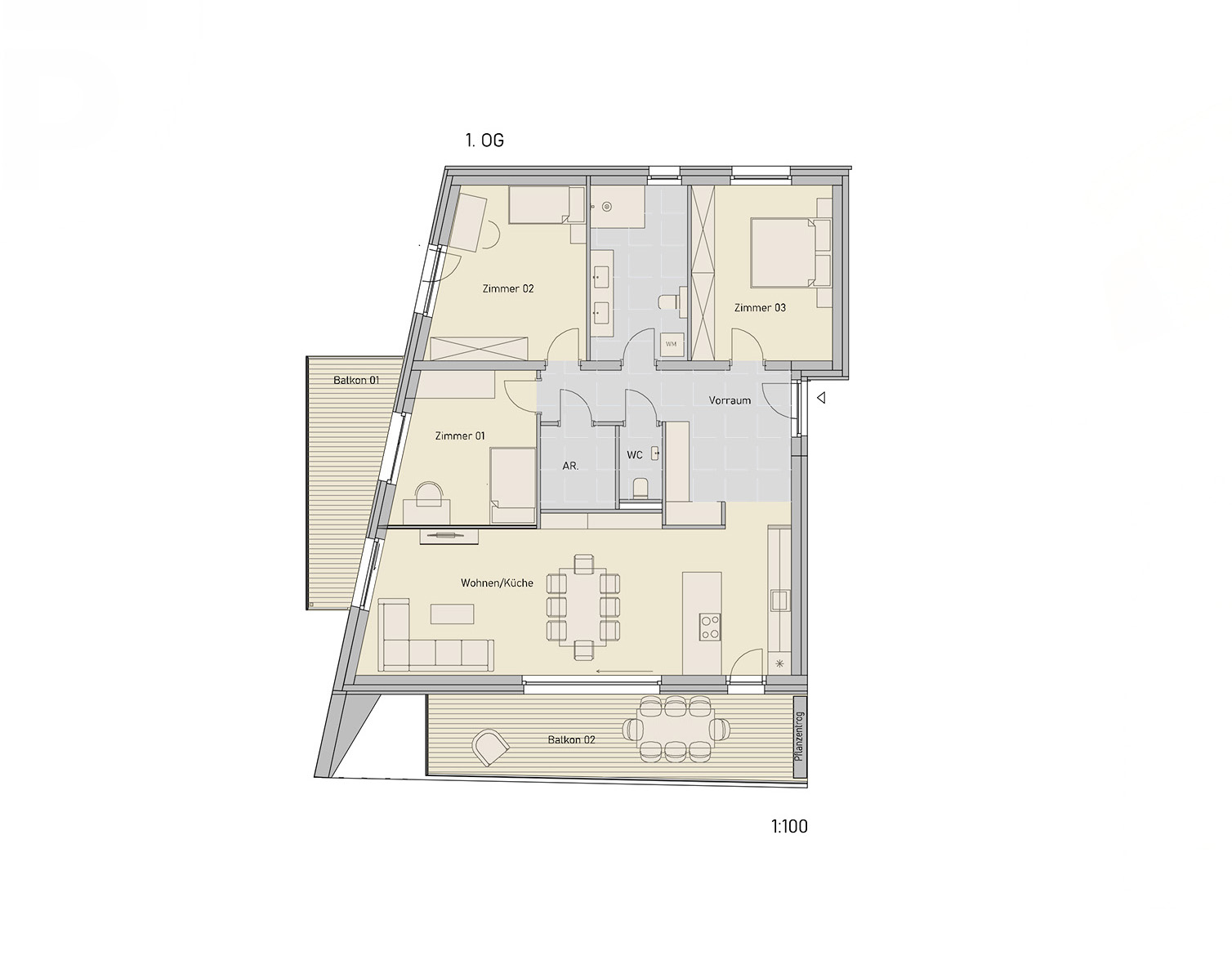
Mit 123 m² bietet diese Wohnung eine großzügige Wohnküche, drei geräumige Schlafzimmer und ein modernes Bad. Der 33 m² große Balkon sorgt für zusätzlichen Freiraum und macht diese Einheit ideal für Familien oder Paare.
Mit 50 m² Wohnfläche bietet diese Wohnung ein durchdachtes Raumkonzept mit einem Schlafzimmer und einer großzügigen Wohnküche. Der 20 m² große Balkon erweitert den Wohnraum ins Freie und sorgt für eine angenehme Atmosphäre.
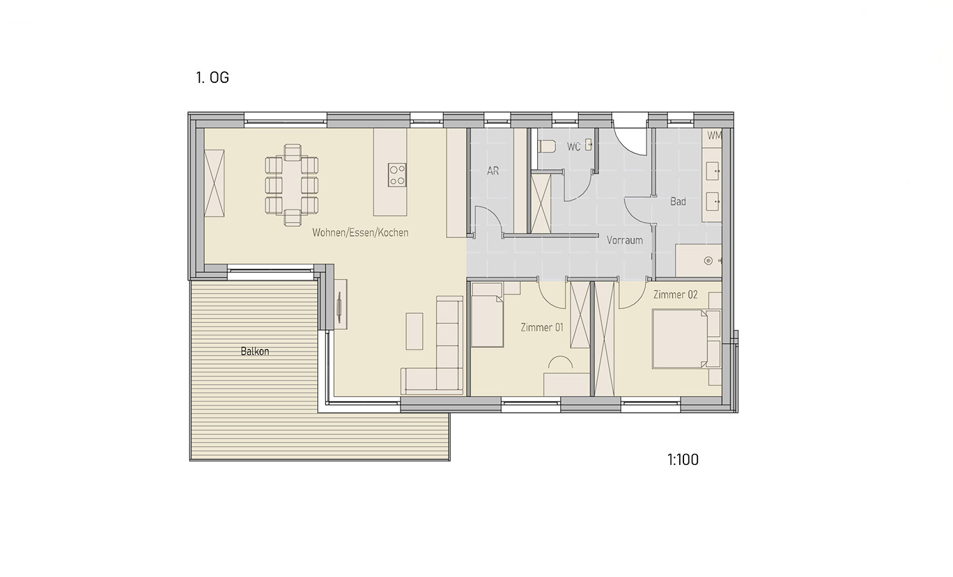
Diese 87 m² große Wohnung kombiniert moderne Wohnqualität mit funktionaler Raumaufteilung. Zwei Schlafzimmer, eine offene Wohnküche und der ca. 22 m² große Balkon bieten höchsten Komfort und viel Platz zum Entspannen.
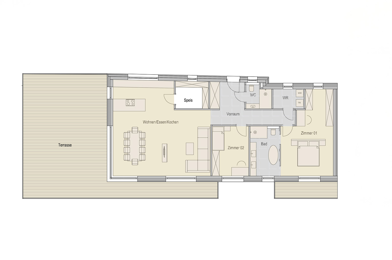
Diese Penthouse-Wohnung mit 72 m² Wohnfläche bietet ein Schlafzimmer, eine offenen Wohnküche, ein modernes Bad und eine großzügige Terrasse mit insgesamt 69 m² schaffen ein einzigartiges Wohnerlebnis mit spektakulärem Ausblick.
Lage & Infrastruktur
Der nächste Schritt zu Ihrem Traumobjekt
Interessiert an weiteren Details zu diesem Immobilienprojekt? Wir stellen Ihnen gerne alle Informationen in einem persönlichen, unverbindlichen Gespräch zur Verfügung. Erfahren Sie mehr über die Besonderheiten, Vorteile und Möglichkeiten dieses Projekts.





























