Moderne Eigentumswohnungen in Sankt Josef
20 Eigentumswohnungen mit Gärten, Terrassen oder Balkonen – modernes Wohnen in sonniger Lage.

Eigentumswohnungen mit Raum für Lebensqualität
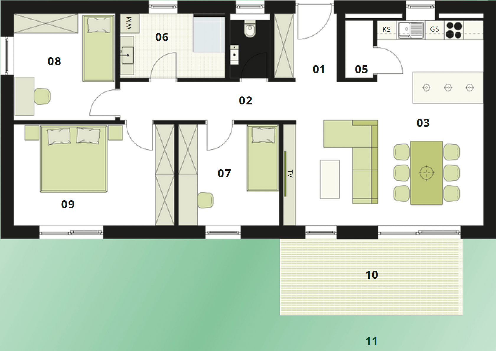
Im Projekt Lindenhöfe in St. Josef bei Lannach entstehen zwanzig moderne Eigentumswohnungen, die hochwertiges Wohnen mit naturnahem Lebensgefühl verbinden. Die Wohnungen bieten Wohnflächen zwischen 45 m² und 102 m² und überzeugen durch klare Architektur, großzügige Balkone, Terrassen oder private Gärten.
Großzügige Fensterflächen sorgen für lichtdurchflutete Räume und ein offenes Ambiente, während natürliche Materialien und eine stilvolle Ausstattung für zeitlose Eleganz stehen.
Die ruhige, sonnige Lage mit Nähe zu Nahversorgern, Schulen und öffentlicher Anbindung macht die Lindenhöfe zu einem Ort, an dem modernes Wohnen und hohe Lebensqualität harmonisch zusammenfinden – nur 30 Minuten von Graz entfernt.
Grazer Stadtlage
Ausgezeichnete Lebensqualität in erstklassiger Grazer Stadtlage.
Bauweise
Neubau in Ziegelmassivbauweise mit hellen, freundlichen Räumlichkeiten und gut durchdachtem Grundriss.
Bezugsfertig
Ideal für Menschen, die urbanen Lebensraum schätzen und großen Wert auf hochwertige und moderne Bauweise legen.
Komfort
Eigengärten und großzügig gestaltete Terrassen mit einzigartigem unverbaubarem Ausblick runden den Wohnkomfort ab.
Einheiten
Noch 20 Wohneinheiten verfügbar
Lage & Infrastruktur
Der nächste Schritt zu Ihrem Traumobjekt
Interessiert an weiteren Details zu diesem Immobilienprojekt? Wir stellen Ihnen gerne alle Informationen in einem persönlichen, unverbindlichen Gespräch zur Verfügung. Erfahren Sie mehr über die Besonderheiten, Vorteile und Möglichkeiten dieses Projekts.























