Attraktives Mehrparteienhaus in Voitsberg
28 gut vermietbare Einheiten in zentraler Ecklage – attraktives Zinshausensemble mit stabilem Ertragspotenzial

Im renditestarken Zinshausensemble in Voitsberg erwartet Anleger eine seltene Gelegenheit: In zentraler Ecklage umfasst das Objekt neunundzwanzig gut vermietbare Wohneinheiten und bietet damit eine sofort nutzbare, stabile Ertragsbasis.
Sämtliche Wohnungen sind bereits vermietet, wodurch von Beginn an verlässliche Mieteinnahmen ohne Leerstandsrisiko sichergestellt sind.
Die klassisch solide Gebäudestruktur überzeugt durch wirtschaftlich nutzbare Grundrisse und eine hohe Nachfrage am Standort, während laufende Instandhaltungsmaßnahmen den Werterhalt der Substanz unterstreichen. Die urban gelegene Liegenschaft profitiert von der Nähe zu Nahversorgung, öffentlichen Einrichtungen und Verkehrsanbindungen und sorgt so für eine dauerhaft gesicherte Vermietbarkeit.
Ein Investment, das langfristige Stabilität mit attraktivem Renditepotenzial vereint – ideal für Bestandsinvestoren, die auf sichere Einnahmen und nachhaltige Wertentwicklung setzen.
Projektart
Einheiten
Adresse
Kaufpreis
BAUSTART
Wohnfläche
Nutzfläche
Grazer Stadtlage
Ausgezeichnete Lebensqualität in erstklassiger Grazer Stadtlage.
Bauweise
Neubau in Ziegelmassivbauweise mit hellen, freundlichen Räumlichkeiten und gut durchdachtem Grundriss.
Bezugsfertig
Ideal für Menschen, die urbanen Lebensraum schätzen und großen Wert auf hochwertige und moderne Bauweise legen.
Komfort
Eigengärten und großzügig gestaltete Terrassen mit einzigartigem unverbaubarem Ausblick runden den Wohnkomfort ab.










Einheiten
28 Einheiten
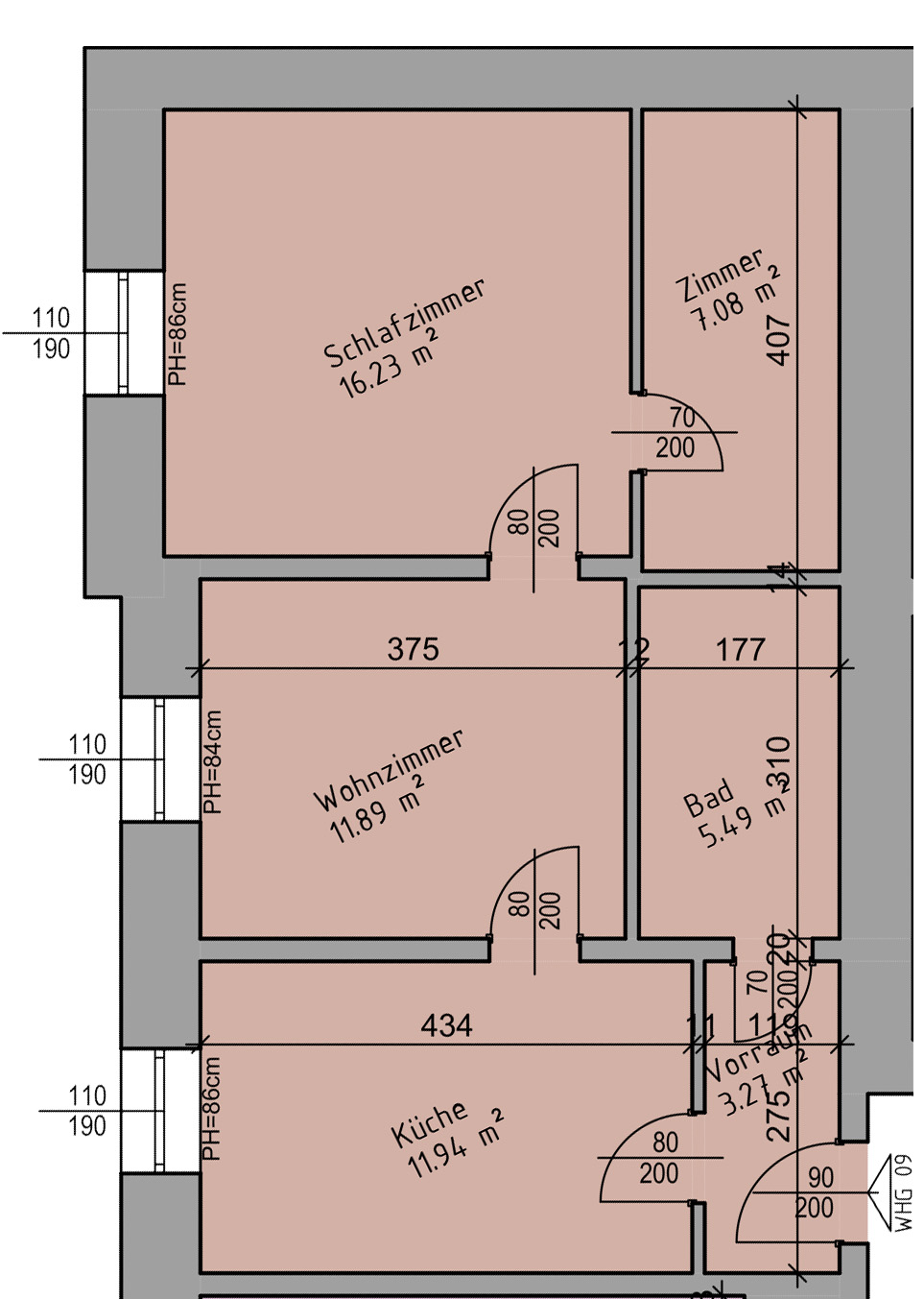
Diese großzügige Wohnung bietet auf rund 115 m² viel Raum für komfortables Wohnen. Ein weitläufiger Wohnbereich bildet das Herzstück der Einheit und lässt sich ideal mit Essen und Kochen verbinden.
Mehrere gut geschnittene Zimmer schaffen flexible Nutzungsmöglichkeiten – ob als Schlaf-, Kinder- oder Arbeitsräume. Bad, WC und Vorraum sind funktional angeordnet und runden das stimmige Wohnkonzept ab.
Ideal für Familien oder alle, die gerne großzügig wohnen.
Diese Wohnung bietet auf rund 52 m² eine kompakte, aber sehr gut gegliederte 4-Zimmer-Aufteilung. Ein helles Wohnzimmer bildet den zentralen Wohnbereich, während drei weitere Zimmer flexibel als Schlaf-, Kinder- oder Arbeitsräume genutzt werden können.
Durch die klare Trennung der Räume entsteht trotz der effizienten Größe ein angenehmes Wohngefühl mit guter Privatsphäre. Bad, separates WC und Vorraum sind praktisch angeordnet und unterstützen den Alltag.
Eine ideale Lösung für kleine Familien, WGs oder Paare mit zusätzlichem Raumbedarf.
Diese charmante Kleinwohnung bietet auf rund 35 m² ein durchdachtes Wohnkonzept für effizientes Wohnen. Der kombinierte Wohn- und Schlafbereich lässt sich flexibel möblieren und schafft ein gemütliches Ambiente. Eine separate Küche sowie ein Bad mit WC ergänzen die Einheit sinnvoll.
Ideal als Starterwohnung, Stadtwohnung oder zur Vermietung an Einzelpersonen.
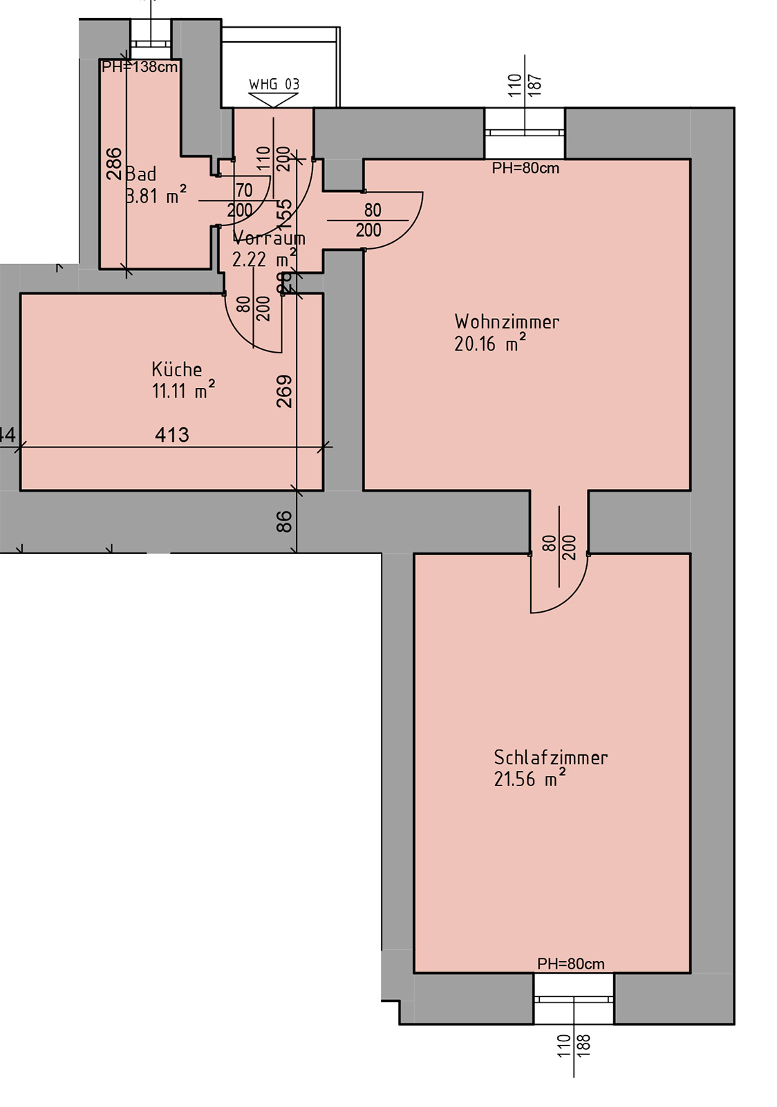
Diese großzügige Wohnung bietet auf rund 101 m² eine durchdachte 4-Zimmer-Aufteilung mit klarer Raumtrennung. Ein helles Wohnzimmer bildet den zentralen Lebensmittelpunkt, während drei weitere Zimmer flexibel als Schlaf-, Kinder- oder Arbeitsräume genutzt werden können. Die separat angelegte Küche ist angenehm groß und bietet viel Platz zum Kochen und Essen im Alltag.
Durch die gute Proportionierung der Räume entsteht ein offenes, dennoch wohnlich gegliedertes Ambiente.
Bad, separates WC und ein zentral gelegener Vorraum runden den Grundriss funktional ab – ideal für Familien oder Paare mit Platzbedarf.
Diese kompakte Wohnung bietet auf rund 32 m² eine klare und effiziente 2-Zimmer-Aufteilung.
Die Wohnküche bildet den zentralen Bereich der Einheit und schafft trotz der Größe ein angenehmes, offenes Wohngefühl. Das Schlafzimmer ist separat gelegen und bietet einen ruhigen Rückzugsort. Bad und Vorraum sind funktional angeordnet und runden den Grundriss sinnvoll ab.
Ideal für Singles, Pendler oder als gut vermietbare Anlegerwohnung.
Diese Wohnung bietet auf rund 54 m² eine klar strukturierte 3-Zimmer-Aufteilung mit angenehmer Raumtrennung. Die Wohnküche bildet den zentralen Wohnbereich und schafft Platz für Kochen, Essen und Entspannen in einem offenen Rahmen. Ein großzügiges Schlafzimmer sorgt für Ruhe und Rückzug, während ein weiteres Zimmer flexibel als Kinder-, Arbeits- oder Gästezimmer genutzt werden kann. Bad, separates WC und der kompakte Vorraum sind praktisch angeordnet und unterstützen den Alltag.
Ideal für Paare, kleine Familien oder alle, die neben dem Schlafzimmer ein zusätzliches Zimmer schätzen.
Diese Wohnung bietet auf etwa 44 m² eine kompakte, aber gut strukturierte Aufteilung. Der Wohnbereich mit integrierter Küche bildet den Mittelpunkt und wirkt durch seine Proportion angenehm offen. Ein separates Schlafzimmer ermöglicht ruhiges Wohnen, während Bad, WC und Vorraum funktional angeordnet sind.
Eine ideale Lösung für Singles oder Paare, die zentral und effizient wohnen möchten.
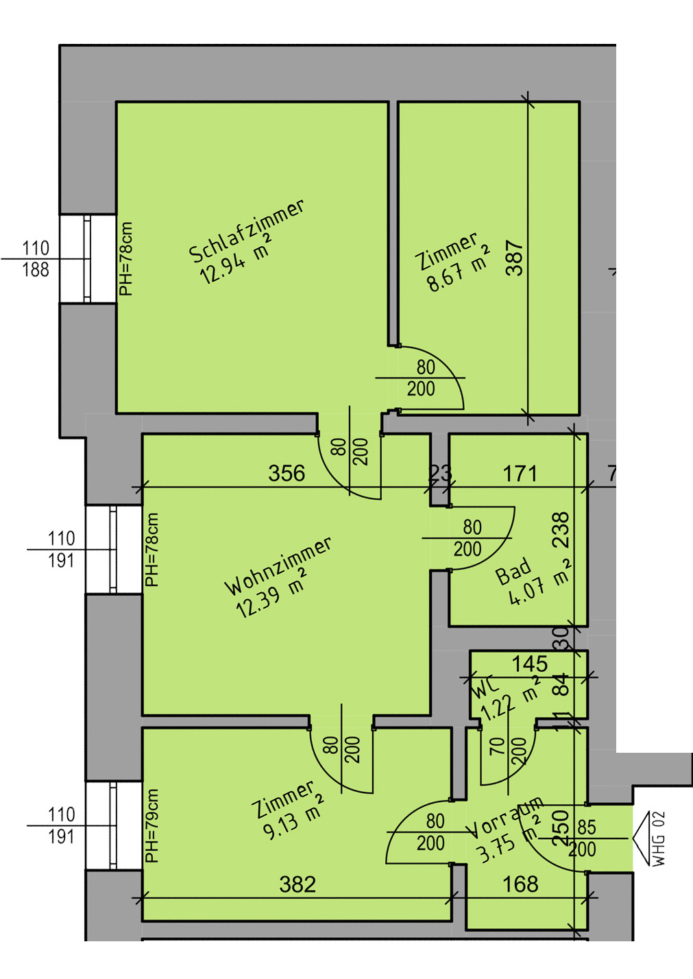
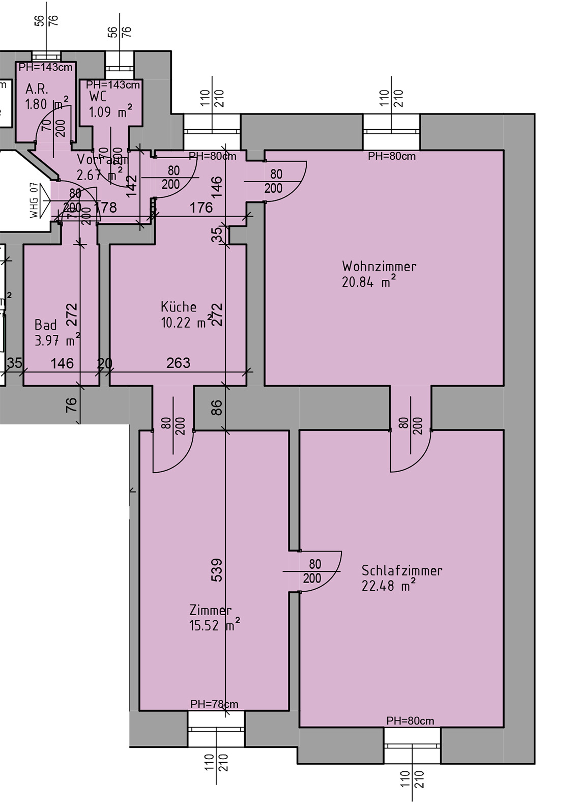
Diese Wohnung bietet auf rund 92 m² eine großzügige 4-Zimmer-Aufteilung mit klarer Trennung der Wohn- und Rückzugsbereiche. Ein helles Wohnzimmer bildet den zentralen Treffpunkt der Wohnung, während drei weitere Zimmer flexibel als Schlaf-, Kinder- oder Arbeitsräume genutzt werden können. Die separate Küche ist angenehm dimensioniert und bietet ausreichend Platz für Kochen und einen Essbereich.
Der Balkon erweitert den Wohnraum ins Freie und schafft zusätzlichen Komfort für entspannte Stunden.
Bad, WC und ein großzügiger Vorraum sind funktional angeordnet und runden den stimmigen Grundriss ab – ideal für Familien oder Paare mit Platzbedarf.
Diese Wohnung bietet auf rund 56 m² eine klar gegliederte 3-Zimmer-Aufteilung mit zusätzlicher, separat angelegter Küche. Das Wohnzimmer bildet den gemütlichen Mittelpunkt der Einheit, während ein großzügiges Schlafzimmer sowie ein weiteres Zimmer flexibel als Kinder-, Arbeits- oder Gästezimmer genutzt werden können. Die eigenständige Küche ist angenehm dimensioniert und schafft Platz zum Kochen und Essen im Alltag.
Bad und Vorraum sind funktional angeordnet und runden den stimmigen Grundriss ab.
Ideal für Paare oder kleine Familien, die eine kompakte Wohnung mit guter Raumtrennung suchen.
Diese Wohnung bietet eine gut strukturierte 2-Zimmer-Aufteilung mit klarer Trennung von Wohnen und Schlafen. Die Wohnküche bildet den zentralen Lebensbereich und ist angenehm dimensioniert für Kochen, Essen und Entspannen. Das großzügige Schlafzimmer schafft einen ruhigen Rückzugsort mit Platz für Stauraum.
Bad und Vorraum sind kompakt und funktional angeordnet und runden den Grundriss stimmig ab. Ideal für Singles oder Paare, die eine gemütliche Wohnung mit effizienter Raumlösung suchen.
Auf dieser Wohnung erwartet dich eine durchdachte 3-Zimmer-Aufteilung mit praktischem Wohnkomfort. Die Wohnküche ist als Mittelpunkt ausgeführt und bietet eine offene, freundliche Atmosphäre für Alltag und Geselligkeit. Ein großes Schlafzimmer sorgt für Ruhe und Erholung, während ein weiteres Zimmer flexibel als Kinder-, Arbeits- oder Gästezimmer genutzt werden kann.
Der großzügige Vorraum schafft ein angenehmes Ankommen und verbindet alle Räume gut.
Bad, separates WC und Abstellraum ergänzen die Wohnung funktional – ideal für Paare oder kleine Familien.
Diese Wohnung überzeugt mit einer klar gegliederten 4-Zimmer-Struktur und angenehmer Raumaufteilung. Die Wohnküche ist zentral gelegen und bietet ausreichend Platz für Wohnen, Essen und Kochen in einem offenen Rahmen. Zwei Schlafzimmer sowie ein weiteres Zimmer ermöglichen flexible Nutzungsmöglichkeiten – etwa für Kinder, Homeoffice oder Gäste. Durch die gute Trennung der Zimmer entsteht ein wohnliches Ambiente mit viel Privatsphäre.
Vorraum, separates WC und praktische Nebenflächen runden das Gesamtbild ab. Ideal für Familien oder alle, die mehrere Zimmer kompakt und gut nutzbar vereint haben möchten.
Diese Wohnung bietet eine kompakte, sehr stimmige 2-Zimmer-Aufteilung mit angenehmer Raumlogik. Die Wohnküche bildet den freundlichen Mittelpunkt und lässt sich flexibel einrichten – ideal zum Kochen, Essen und Entspannen. Das separate Schlafzimmer ist gut proportioniert und bietet einen ruhigen Rückzugsbereich.
Bad, separates WC, Vorraum und Abstellraum sind praktisch angeordnet und sorgen für Alltagstauglichkeit trotz effizienter Größe.
Eine ideale Wohnung für Singles, Paare oder als gut vermietbares Investment.
Diese Wohnung bietet auf rund 67 m² eine vielseitige 4-Zimmer-Aufteilung. Die separate Küche ist angenehm dimensioniert und praktisch gelegen.
Das Wohnzimmer bildet den zentralen Wohnbereich, während drei weitere Zimmer flexibel als Schlaf-, Kinder- oder Arbeitszimmer genutzt werden können. Bad, WC, Vorraum und Abstellraum sind funktional angeordnet und sorgen für Komfort im Alltag.
Ideal für Paare oder kleine Familien, die eine klare Raumstruktur und gut nutzbare Zimmer schätzen.
Auf rund 54 m² bietet diese Wohnung eine angenehm klare und gut nutzbare Aufteilung. Das Wohnzimmer bildet den zentralen Wohnbereich und wirkt durch seine Proportionen offen und einladend. Die separate Küche ist funktional angeordnet und lässt sich gut in den Alltag integrieren. Ein ruhiges Schlafzimmer sorgt für Privatsphäre und Rückzug.
Die Vorräume schaffen eine saubere Trennung der Bereiche und bieten praktische Abstellmöglichkeiten, während Bad und WC kompakt und alltagstauglich platziert sind.
Ideal für Singles oder Paare, die eine klassisch geschnittene 2-Zimmer-Wohnung suchen.
Auf rund 59 m² bietet diese Wohnung ein klassisches 2-Zimmer-Konzept im großzügigen Stil. Das helle Wohnzimmer schafft ein freundliches Ambiente, während die separate Küche funktional positioniert ist.
Ein großes Schlafzimmer bietet viel Raum für Erholung und Stauraum. Badezimmer und Vorraum sind kompakt organisiert und fügen sich stimmig in den Grundriss ein.
Perfekt für Singles oder Paare, die Wert auf große, gut nutzbare Räume legen.
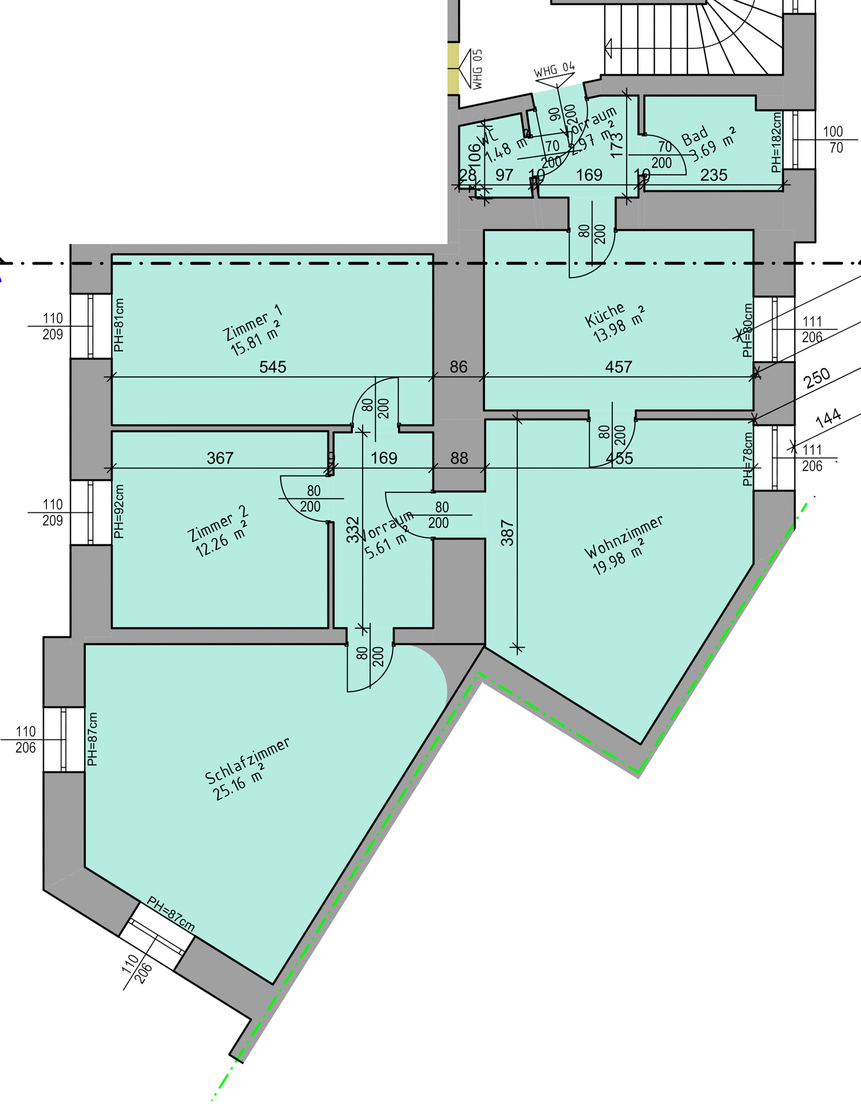
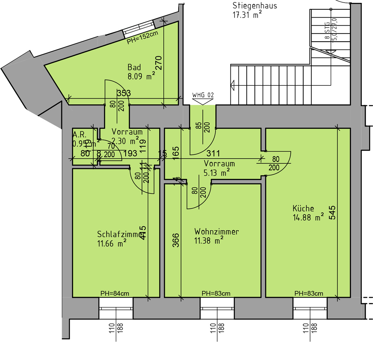
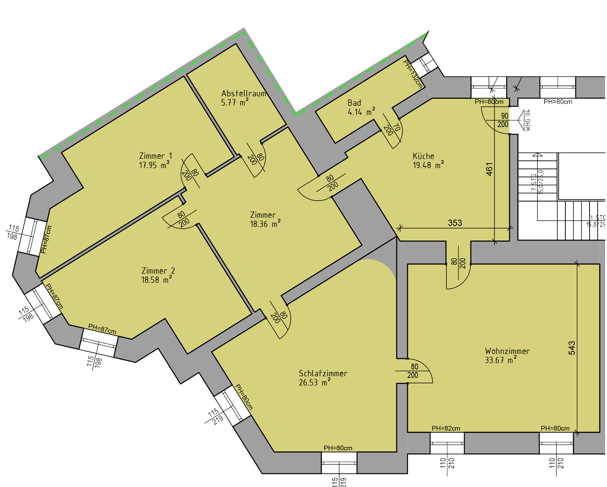
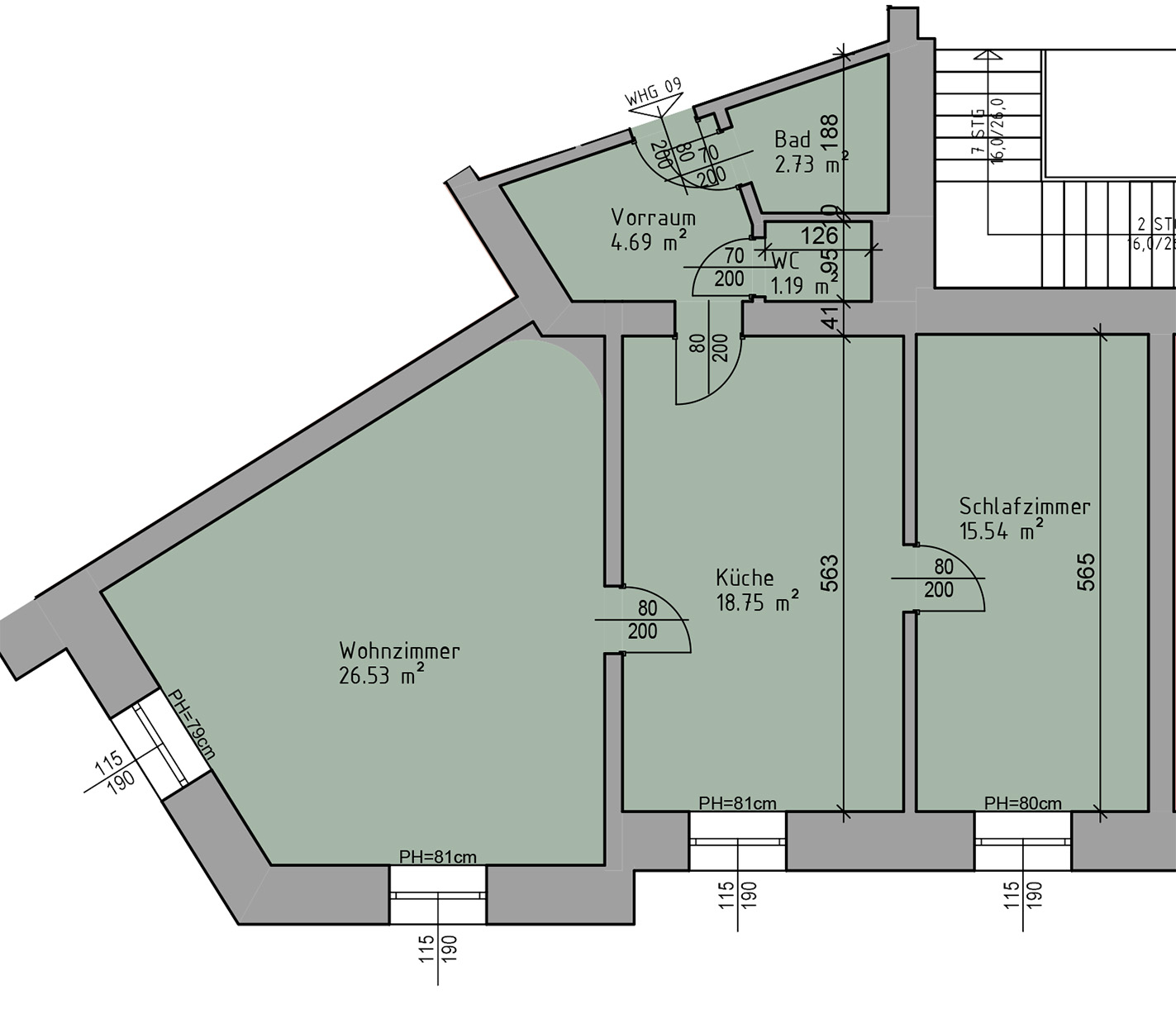
Diese äußerst großzügige Wohnung bietet auf ca. 144 m² eine klare, weitläufige Raumaufteilung mit insgesamt fünf Zimmern. Das große Wohnzimmer bildet den Mittelpunkt des Wohnens, während die separat angeordnete Küche viel Platz zum Kochen und Zusammensitzen bietet. Ein geräumiges Schlafzimmer sorgt für Ruhe und Rückzug, ergänzt durch drei weitere Zimmer, die flexibel als Kinder-, Arbeits- oder Gästezimmer genutzt werden können.
Durchdachte Wege, angenehme Proportionen und ein praktischer Abstellraum schaffen ein komfortables Zuhause – ideal für Familien oder alle, die gerne großzügig wohnen.
Auf rund 38 m² bietet diese Wohnung eine kompakte, gut durchdachte 2-Zimmer-Aufteilung. Die Wohnküche bildet den hellen Mittelpunkt und schafft Platz für Wohnen, Essen und Kochen in einem offenen Raumgefühl. Ein separates Schlafzimmer sorgt für angenehme Privatsphäre.
Bad und Vorraum sind funktional angeordnet und runden den Grundriss praktisch ab – ideal für Singles oder Paare, die effizient und gemütlich wohnen möchten.
Diese etwa 41 m² große Wohnung überzeugt mit einer klaren 3-Zimmer-Struktur. Die Wohnküche ist kompakt, aber offen gestaltet und bietet einen angenehmen Aufenthaltsbereich. Zwei weitere Zimmer lassen sich flexibel als Schlaf-, Arbeits- oder Gästezimmer nutzen. Bad, WC und Vorraum sind sinnvoll integriert und unterstützen den Alltag mit kurzen Wegen.
Eine ideale Lösung für Paare mit Homeoffice-Bedarf oder kleine Familien.
Die Wohnung ist als klassische 3-Zimmer-Einheit aufgebaut und bietet eine sehr angenehme Raumfolge. Ein großes Wohnzimmer bildet den zentralen Bereich, ergänzt durch ein ruhiges Schlafzimmer und ein weiteres Zimmer für Kind, Büro oder Gäste. Die separate Küche ist gut dimensioniert und vom Wohnbereich getrennt.
Durch die übersichtliche Aufteilung eignet sich die Wohnung besonders für Paare oder kleine Familien.
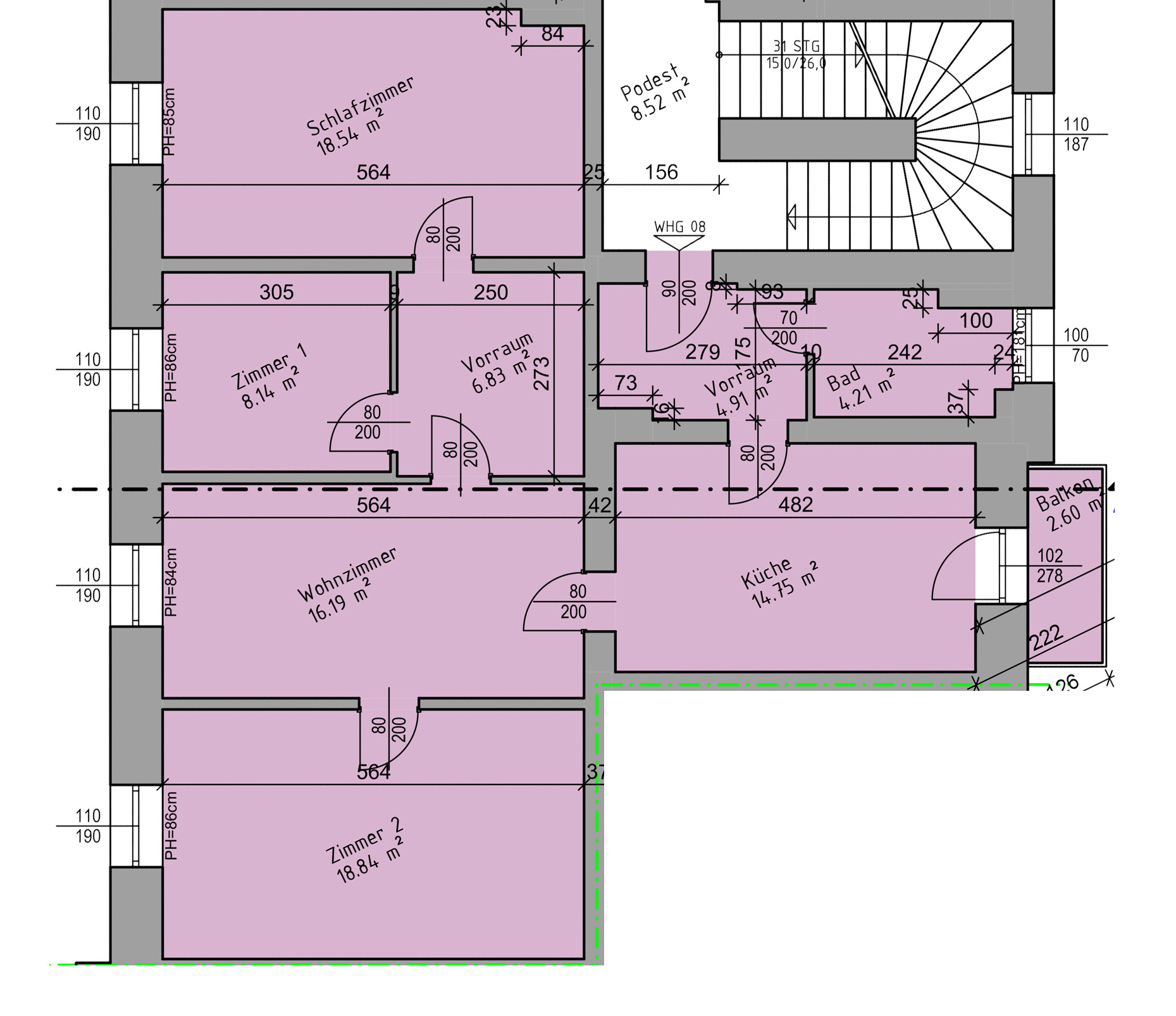
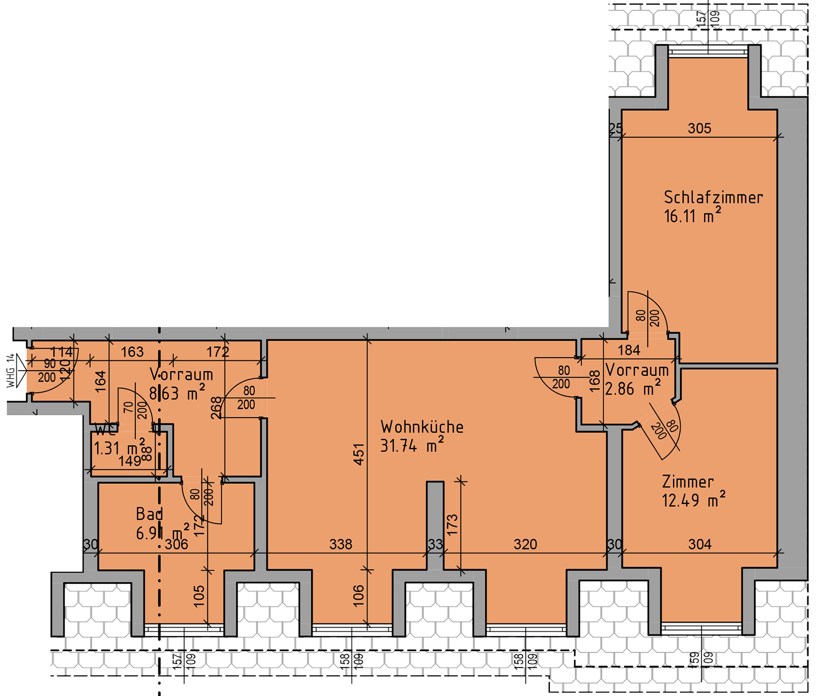
Diese Wohnung überzeugt mit einer großzügigen, klar gegliederten Raumaufteilung und drei vollwertigen Zimmern. Das Wohnzimmer bildet den zentralen, hellen Aufenthaltsraum und bietet viel Platz für Alltag und Entspannung. Die separate Küche ist eigenständig angeordnet und angenehm dimensioniert – ideal für Kochen mit Ruhe und Struktur.
Zwei Schlafzimmer schaffen komfortable Rückzugsorte, etwa als Eltern- und Kinderzimmer oder für Arbeiten zu Hause. Bad, WC und Vorraum ergänzen den Grundriss funktional und alltagstauglich.
Mit den weiten Raumproportionen und dem Balkon entsteht ein offenes, sehr angenehmes Wohngefühl für Paare oder kleine Familien.
Diese Wohnung bietet auf rund 69 m² eine stimmige 2-Zimmer-Aufteilung mit separater Küche. Das großzügige Wohnzimmer bildet den zentralen Wohnbereich und lädt zum Entspannen ein, während das Schlafzimmer angenehm ruhig positioniert ist und ausreichend Platz für Rückzug bietet. Die eigenständige Küche ist klar vom Wohnraum getrennt und schafft eine praktische Struktur im Alltag.
Bad, WC und Vorraum sind kompakt und funktional angeordnet. Helle Räume und eine einfache, gut nutzbare Raumführung machen diese Einheit ideal für Singles oder Paare.
Diese kompakte 2-Zimmer-Wohnung bietet eine effiziente Raumaufteilung auf rund 39 m². Die Wohnküche ist der freundliche Mittelpunkt der Wohnung und lässt sich gut als Wohnbereich nutzen. Ein separates Schlafzimmer sorgt für Rückzug und Ruhe. Vorraum und Bad sind funktional angeordnet, wodurch der Grundriss insgesamt sehr alltagstauglich wirkt – ideal für Singles oder Paare.
Auf etwa 44 m² präsentiert sich diese Wohnung als gut geschnittene 2-Zimmer-Einheit mit klarer Trennung der Bereiche. Wohnzimmer und Schlafzimmer sind angenehm proportioniert und bieten ausreichend Platz für Wohnen und Erholen. Die separate Küche liegt praktisch angebunden und ist als eigenständiger Raum ausgeführt.
Bad und Vorraum ergänzen den durchdachten Grundriss – passend für Singles oder Paare, die eine getrennte Küche bevorzugen.
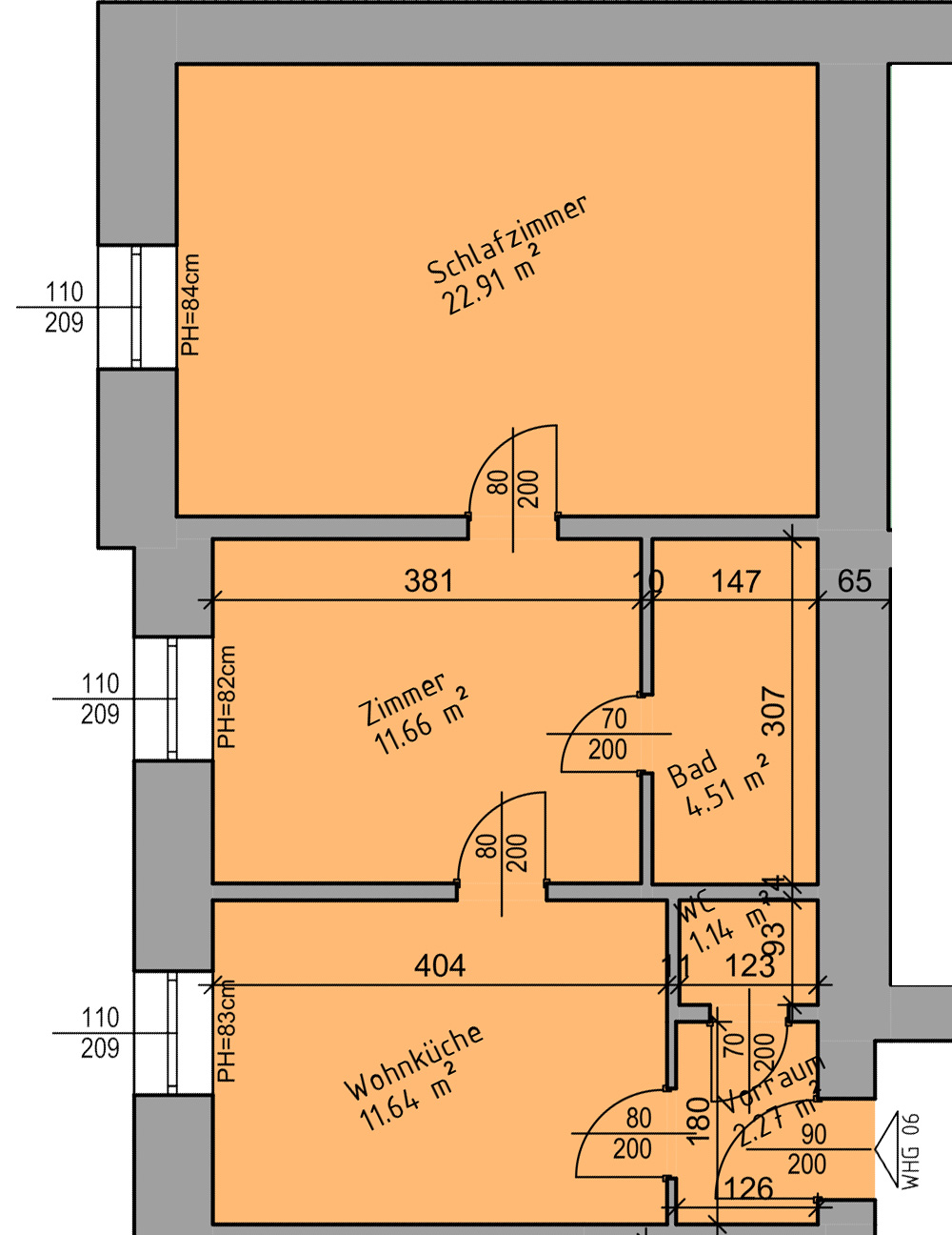
Diese helle 3-Zimmer-Wohnung erstreckt sich über rund 82 m² und überzeugt durch großzügige Räume. Ein großes Wohnzimmer schafft viel Platz für einen komfortablen Wohnalltag, daneben stehen ein geräumiges Schlafzimmer sowie ein weiteres Zimmer zur flexiblen Nutzung bereit (z. B. Kind, Büro oder Gäste). Die separate Küche ist gut positioniert und ergänzt den Wohnbereich sinnvoll.
Bad, WC sowie die Vorräume sind praktisch angeordnet – ideal für Paare mit Platzbedarf oder kleine Familien.
Mit ca. 52 m² bietet diese 3-Zimmer-Wohnung eine kompakte, aber sehr gut nutzbare Aufteilung. Die Wohnküche dient als zentraler Wohnraum und ist angenehm groß gestaltet. Zusätzlich stehen ein Schlafzimmer sowie ein weiteres Zimmer zur Verfügung, das sich flexibel als Kinder- oder Arbeitszimmer nutzen lässt.
Bad, WC und Vorraum sind getrennt angeordnet, was den Alltag spürbar erleichtert – eine stimmige Wohnung für Paare oder kleine Familien.
Diese rund 80 m² große 3-Zimmer-Wohnung kombiniert Großzügigkeit mit einer spannenden Raumgeometrie. Die sehr geräumige Wohnküche bildet das Herzstück und bietet viel Platz für Wohnen. Zwei weitere Zimmer – ein Schlafzimmer und ein zusätzliches Zimmer – schaffen komfortable Rückzugsmöglichkeiten. Mehrere Vorräume und ein ordentlich dimensioniertes Bad runden den Grundriss funktional ab.
Ideal für alle, die eine große Wohnküche und flexible Zimmeraufteilung schätzen.
Auf etwa 57 m² verteilt sich diese gut geschnittene 3-Zimmer-Wohnung mit stimmigen Raumgrößen. Die Wohnküche ist als heller Wohnraum angelegt und bildet den Mittelpunkt der Wohnung. Daneben stehen ein Schlafzimmer sowie ein weiteres Zimmer zur Verfügung, das sich je nach Bedarf als Arbeits-, Kinder- oder Gästezimmer nutzen lässt.
Bad und WC sind getrennt, die Vorräume sorgen für einen angenehmen Eingangsbereich – eine praktische Wohnung für Paare oder kleine Haushalte.
Lage & Infrastruktur
Arzt
Bank
Café
Apotheke
Restaurant
Lebensmittelgeschäft
Schule
Der nächste Schritt zu Ihrem Traumobjekt
Interessiert an weiteren Details zu diesem Immobilienprojekt? Wir stellen Ihnen gerne alle Informationen in einem persönlichen, unverbindlichen Gespräch zur Verfügung. Erfahren Sie mehr über die Besonderheiten, Vorteile und Möglichkeiten dieses Projekts.





























