Modernes Neubauprojekt im Kurgebiet von Bad Gams
Am ruhigen Ortsrand von Bad Gams entsteht ein modernes Wohnprojekt mit 13 hochwertig ausgestatteten Mietwohnungen. Die naturnahe Lage, großzügige Außenflächen und durchdachte Architektur verbinden Wohnqualität mit Erholung im Grünen.

Modernes Neubauprojekt in Bad Gams
Am ruhigen Ortsrand von Bad Gams, umgeben von Grün und sanften Hügeln, entsteht ein moderner Neubau mit 12 hochwertig ausgestatteten Mietwohnungen. Das Angebot reicht von 2-Zimmer-Wohnungen mit ca. 52 m² über 3-Zimmer-Wohnungen mit ca. 76 m² bis hin zu einem exklusiven Penthouse mit 170 m² Wohnfläche. Damit finden Singles, Paare und Familien gleichermaßen das passende Zuhause.
Die Architektur mit klaren Linien, großen Glasflächen und natürlichen Materialien sorgt für helle, offene Wohnräume und eine moderne Atmosphäre. Alle Wohnungen überzeugen mit durchdachten Grundrissen, direktem Naturbezug sowie Terrassen oder Gärten. Das Penthouse bietet darüber hinaus besondere Extras wie eine eigene Sauna, einen Fitnessraum und eine großzügige begrünte Dachterrasse mit Panoramablick.
Die Lage im idyllischen Kurgebiet von Bad Gams verbindet Ruhe und Natur mit bester Infrastruktur. In unmittelbarer Nähe befinden sich das Naturschwimmbad, Nahversorger, Schule, Kindergarten, Gastronomie sowie öffentliche Verkehrsmittel. Zahlreiche Wander- und Freizeitmöglichkeiten runden das Wohnumfeld ideal ab.
Ausstattung & Highlights
- Fußbodenheizung für ein gleichmäßig warmes Wohngefühl
- Moderne, hochwertige Einbauküchen inklusive
- Barrierefreie Bauweise für komfortables Wohnen in jedem Lebensabschnitt
- Aufzug im Haus für bequemen Zugang zu allen Ebenen
- Private Terrassen und Gärten mit direktem Zugang ins Freie
- Überdachte Carport-Stellplätze direkt beim Haus
- Praktische Kellerabteile für zusätzlichen Stauraum
Grazer Stadtlage
Ausgezeichnete Lebensqualität in erstklassiger Grazer Stadtlage.
Bauweise
Neubau in Ziegelmassivbauweise mit hellen, freundlichen Räumlichkeiten und gut durchdachtem Grundriss.
Bezugsfertig
Ideal für Menschen, die urbanen Lebensraum schätzen und großen Wert auf hochwertige und moderne Bauweise legen.
Komfort
Eigengärten und großzügig gestaltete Terrassen mit einzigartigem unverbaubarem Ausblick runden den Wohnkomfort ab.
Einheiten
Alle Einheiten Vermietet
Diese 3-Zimmerwohnung im Erdgeschoss bietet auf rund 76,25 m² Wohnfläche einen durchdachten Grundriss, der Funktionalität und Wohnkomfort verbindet. Die großzügige Terrasse mit etwa 24,52 m² lädt zu entspannten Stunden im Freien ein und erweitert den Wohnbereich ideal. Ein eigener Kellerraum mit 8,75 m² schafft zusätzlichen Stauraum und rundet das Angebot ab.
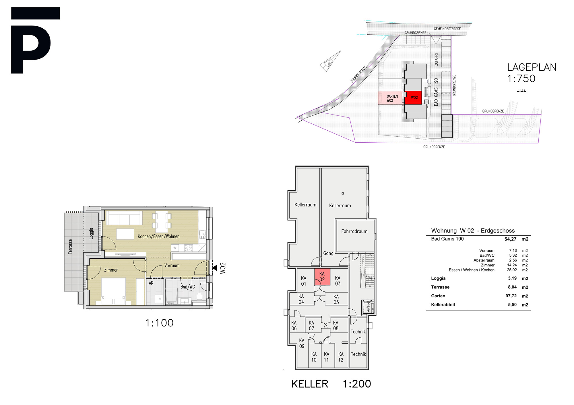
Diese 2-Zimmerwohnung im Erdgeschoss umfasst rund 54 m² und bietet modernen Wohnkomfort in ruhiger Lage. Die private Terrasse mit ca. 8 m² lädt zum Verweilen im Freien ein und schafft zusätzlichen Wohnwert. Ein praktisches Kellerabteil mit 5,5 m² sorgt für nützlichen Stauraum.
Diese 2-Zimmerwohnung im Erdgeschoss bietet rund 52 m² Wohnfläche und eignet sich ideal als Rückzugsort für Singles oder Paare. Die Terrasse mit ca. 7,8 m² erweitert den Wohnbereich ins Freie und schafft zusätzlichen Wohnkomfort. Ein eigenes Kellerabteil mit 9,85 m² sorgt für praktischen Stauraum.
Diese 3-Zimmerwohnung im Erdgeschoss bietet auf rund 76 m² ein komfortables Zuhause mit genügend Platz zum Leben. Die ca. 24,7 m² große Terrasse lädt zum Entspannen im Freien ein und erweitert den Wohnbereich ideal. Ein geräumiges Kellerabteil mit 6,55 m² sorgt für zusätzlichen Stauraum.
Diese 3-Zimmerwohnung im 1. Obergeschoss bietet auf rund 71 m² einen gut durchdachten Grundriss und viel Tageslicht. Der ca. 23,1 m² große Balkon schafft zusätzlichen Freiraum und erweitert den Wohnbereich nach draußen. Ein Kellerabteil mit 5,4 m² ergänzt das Platzangebot praktisch.
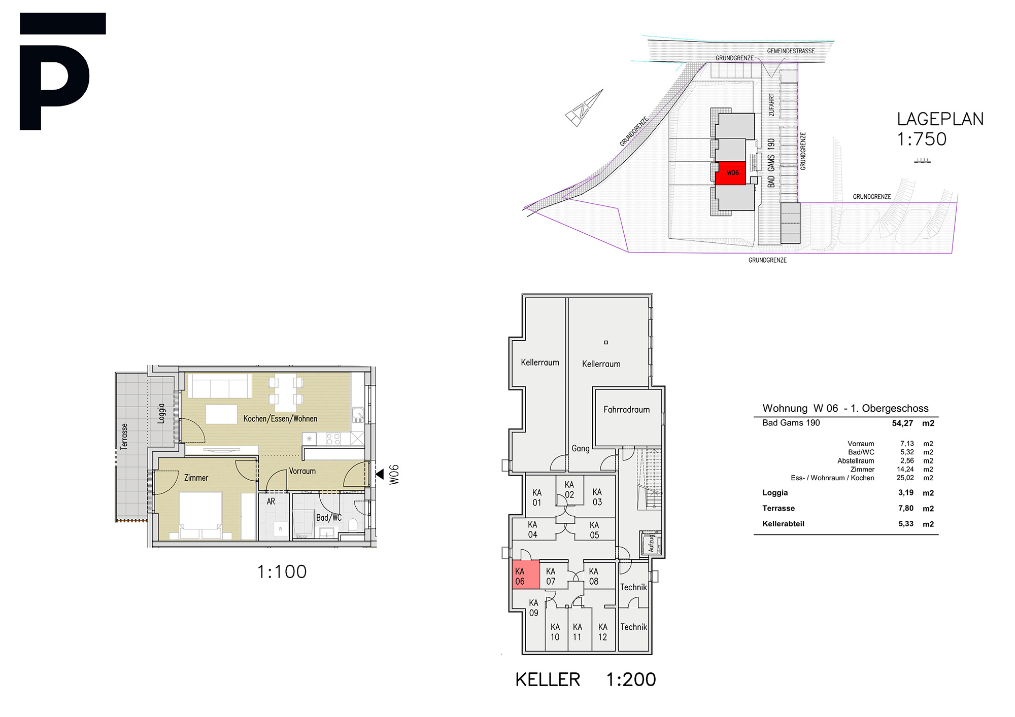
Diese 2-Zimmerwohnung im 1. Obergeschoss verfügt über rund 54 m² Wohnfläche und überzeugt mit einer idealen Raumaufteilung für Singles oder Paare. Die ca. 7,9 m² große Terrasse schafft eine angenehme Verbindung ins Freie und erweitert den Wohnraum. Ein Kellerabteil mit 5,33 m² sorgt für zusätzlichen Stauraum.
Diese 2-Zimmerwohnung im 1. Obergeschoss bietet rund 52 m² Wohnfläche und überzeugt durch ihre effiziente Raumaufteilung und klare Struktur. Der ca. 7,8 m² große Balkon lädt zum Verweilen ein und erweitert den Wohnbereich ins Freie. Ein Kellerabteil mit 4,99 m² ergänzt das Platzangebot sinnvoll.
Diese 3-Zimmerwohnung im 1. Obergeschoss bietet auf rund 76 m² viel Raum zum Wohlfühlen. Die 22 m² große Terrasse erweitert den Wohnbereich ins Freie und lädt zum Entspannen ein. Ein Kellerabteil mit 5,6 m² sorgt für praktischen Stauraum.
Diese 3-Zimmerwohnung im 2. Obergeschoss bietet auf rund 76,25 m² Wohnfläche ein komfortables Zuhause mit viel Tageslicht. Die großzügige Terrasse mit ca. 22,21 m² schafft ein besonderes Freiraumgefühl und lädt zum Entspannen im Freien ein. Ein Kellerabteil mit 10,09 m² sorgt für zusätzlichen Stauraum.
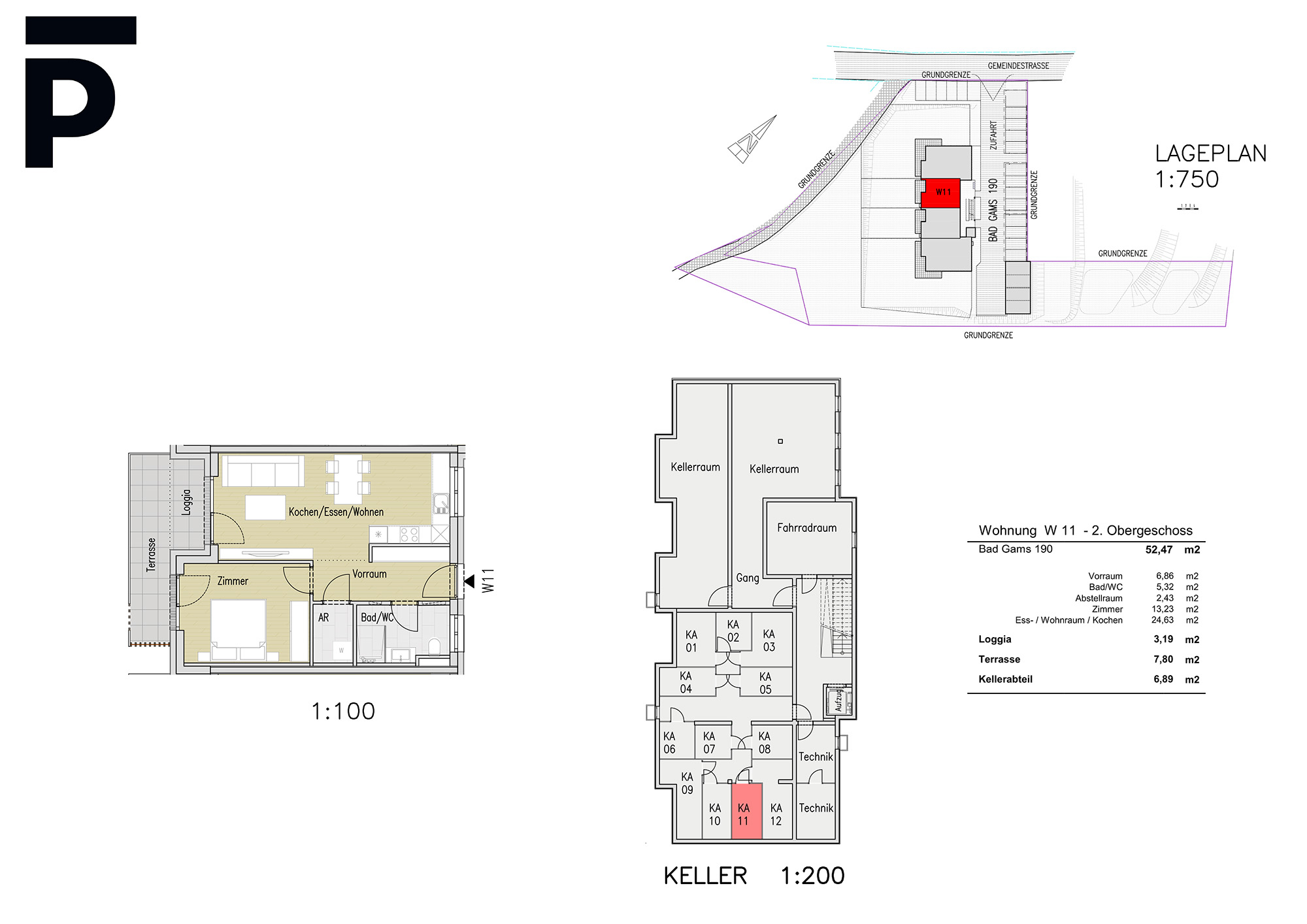
Diese 2-Zimmerwohnung im 2. Obergeschoss umfasst rund 54 m² Wohnfläche und überzeugt mit einer funktionalen Aufteilung. Die ca. 7,8 m² große Terrasse ergänzt den Wohnraum ideal und bietet Platz zum Entspannen im Freien. Ein Kellerabteil mit 6,53 m² ist ebenfalls inkludiert.
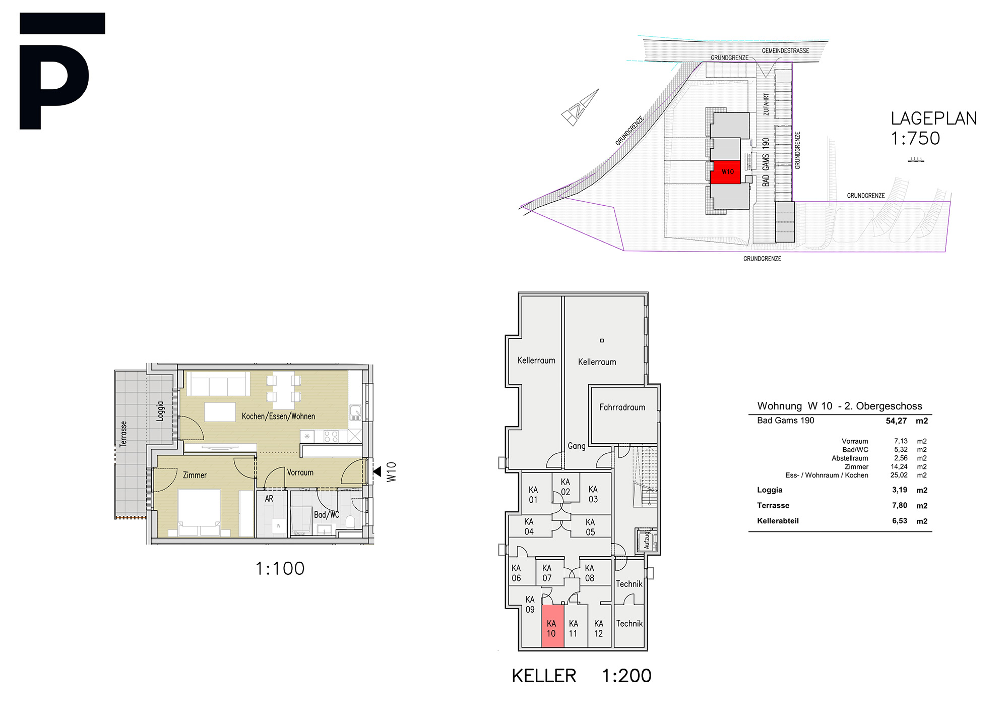
Diese 2-Zimmerwohnung im 2. Obergeschoss bietet rund 52 m² Wohnfläche und überzeugt mit einem durchdachten Grundriss. Die ca. 7,8 m² große Terrasse lädt zum Entspannen im Freien ein und erweitert den Wohnbereich. Ein Kellerabteil mit 6,9 m² sorgt für zusätzlichen Stauraum.
Diese 3-Zimmerwohnung im 2. Obergeschoss bietet auf rund 76 m² Wohnfläche viel Raum zur Entfaltung. Die großzügige Terrasse mit ca. 22,17 m² schafft ein besonderes Wohngefühl und erweitert den Wohnbereich ins Freie. Ein Kellerabteil mit 10,66 m² rundet das Angebot ab.
Lage & Infrastruktur
Der nächste Schritt zu Ihrem Traumobjekt
Interessiert an weiteren Details zu diesem Immobilienprojekt? Wir stellen Ihnen gerne alle Informationen in einem persönlichen, unverbindlichen Gespräch zur Verfügung. Erfahren Sie mehr über die Besonderheiten, Vorteile und Möglichkeiten dieses Projekts.















